Vai para a página inicial


Ainda estão faltando a colocação dos armários embutidos, lustres, rodapés
e a parte de paisagismo da entrada (cachoeira e cortina dágua) e do jardim interno.

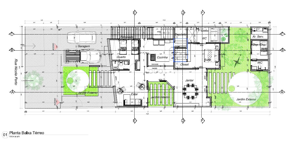
planta baixa do térreo
Planta térreo
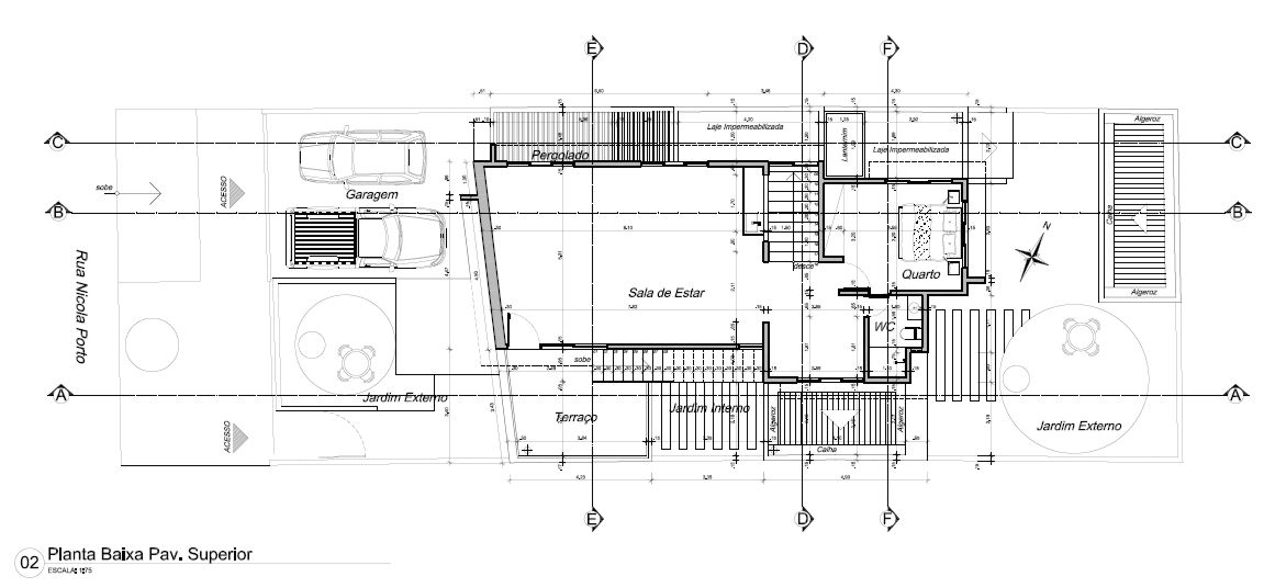
Planta baixa do 1 andar
Planta 1 andar
Localização
Localização
vista frontal
Vista frontal
vista lateral da casa
Vista lateral

Vista aérea
entrada de pedestre
Entrada pedestre
entrada social
Entrada social
entrada de serviço - horta
Entrada serviço
Garagem
garagem

cisternas
painel de controle do chafariz e bombas d'água
Painel controle
iluminação dos muros
Iluminação
chuveiro de praia
chuveiro praia
jardim entrada
jardim entrada
cachoeira (falta o pasagismo)
cachoeira
cortina dágua chafariz
chafariz
Sala de estar
sala estar
TV sala estar
TV sala
apoio de pratos e bebidas para sofá
apoio de sofá


Oratório (só cachaças)
oratório
sala de jantar
sala Jantar
sala de jantar




Jardim interno
Jardim interno
Jardim interno

telhado inteligente
telhado inteligente
Balcão do bar
balcão Bar
balcão do Bar
Cozinha
cozinha
Coifa
coifa

estantes de tempreros
temperos
cofre
cofre

Quarto casal
Quarto casal
Quarto casal
pia
pia
espelho da suite de casal
espelho suite casal
Banheira de hidromassagem
banheira hidrom
Box com 2 chuveiros e telhado de vidro
box com 2 chuveiros
Quarto Visita Térreo
Quarto Visita Térreo
Quarto Visita Térreo


pia
pia suite visita

Área de serviço
área serviço



Q empreg

Banh empreg
Lavanderia
lavanderia
Suite do 1 andar
Quarto Visita 1 andar
Suite do 1 andar
Suite do 1 andar

espelho da suite visita do 1 andar
pia suite visita

estação de trabalho da gravadora Laser
Laser
Máq corte a Laser
Máq corte a Laser



atelie
Ateliê
parede da Bel
estante Bel
Bancada da Bel
bancada da Bel
bancada Neto
bancada do Neto
Guincho para carga
guincho carga

escada externa de acesso a laje superior
escada p/ laje sup


Caixa d'água
caixas d'água



Diversos
escada interna
escada interna
claviculario da sala
claviculário
Bicicletário
bicicletário
caixa de correio com tampa interna transparente
caixa de correio


demolição da casa antiga
demolição
terreno nivelado
terreno
fundação
fundação
sapatas
sapatas
fundação
fundação
baldrame
baldrame
baldrame
baldrame
colunas do térreo
colunas
Vista aérea das colunas do térreo
colunas
vigas do térreo
vigas
vigas do térreo
vigas
vigas do térreo
vigas
escoramento da laje e vigas do térreo
vigas
laje do 1 andar
lage 1
laje do 1 andar
lage 1
concretagem da laje do 1 andar
lage 1
laje do 1 andar
lage 1
colunas do 1 andar e paredes do térreo
colunas 1 and
vigas do 1 andar
vigas 1 and
vigas do 1 andar
vigas 1 and
laje do 2 andar
laje do 2 and
concretagem da laje do 2 andar
concret 2 laje
concretagem da laje do 2 andar
concret 2 laje
Caixa d'água
caixa d'água
Dependência de empregada
dep empregada
Dependência de empregada
dep empregada
dep empregada
dep empregada
Laje teto impermeabilizada
Laje teto
vista externa
Vista externa
Vista dos Fundos
Vista fundos


Volta para tela anterior   Vai para a página inicial

Copyright @2009, Artesbn. Todos direitos reservados.
 última atualização:08/09/2011         Aviso Legal - Política de privacidade

área restrita